Prodej výrobního / distribučního pozemku 9 984 m? – Cerhovice (D5, exit 41)
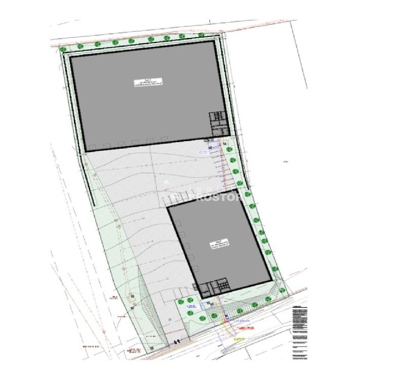
Pozemek je dle územního plánu určen pro plochy výroby a skladování (VK). Vhodný je zejména pro výrobní firmu hledající vlastní are Rozbalitál, regionální distribuční centrum nebo lehkou průmyslovou výrobu bez nadlimitního hluku.Zastavitelnost činí až 70 % plochy, což umožňuje realizaci výrobního či skladového areálu o velikosti cca 4 000 m?. V rámci předchozího návrhu byly řešeny dvě haly o velikosti 2 967 m? a 1 503 m?, přičemž dispozici lze upravit dle potřeb investora. Navržená světlá výška je do 9 m a areál je vhodný pro provoz s kapacitou cca 30–120 zaměstnanců. Projektová dokumentace k předchozímu záměru je k dispozici jako podklad pro nové povolení.Lokalita nabízí výbornou dopravní dostupnost – 400 m od dálnice D5 (Praha – Plzeň – Rozvadov), Praha cca 54 km, Plzeň cca 45 km, s přímým napojením na hlavní komunikaci.Pozemek je vhodný pro firmu, která chce vybudovat vlastní sídlo s výrobou a skladovým zázemím v dostupnosti dálnice D5.Pro více informací, územně-plánovací regulativy a podklady k původnímu projektu nás kontaktujte.
Další fotky(za nemovitost) 9984 m2 celkem
| Stav nabídky: | |
| Číslo: | 65-11640 |
| Kategorie: | Pozemky pro komerční využití - Pozemky |
Makléř
| Jméno | Luboš Borovka |
| Telefon | +420736490317 |
| lubos.borovka@realityprostor.cz |
