Nadčasový rodinný dům 6+kk 155m2 s terasou a zahradou – Mukařov (Srbín)
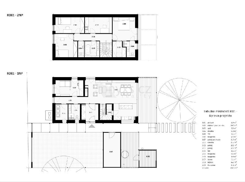
Představte si domov, kde má každý svůj prostor.Kde se ráno probouzíte do ticha, odpoledne trávíte s rodinou na zahradě a večer si Rozbalitužíváte klid u krbu.Právě takový je tento nadstandardní rodinný dům o dispozici 6+kk, který nabízí nejen velkorysý prostor pro velkou rodinu, ale i zázemí pro práci z domova, hosty nebo vaše koníčky.Dům ALFA o ploše 155,5 m? stojí na pozemku 816 m? a byl navržen tak, aby přirozeně propojil světlo, prostor a každodenní komfort. Domov, kde se bude cítit pohodlně celá vaše rodinaDispozice 6+kk vám dává svobodu žít podle vlastních pravidel:Přízemí – srdce domovaVelkorysý obytný prostor (téměř 40 m?), kde se bude odehrávat váš každodenní život:– kuchyně s prostorem pro ostrůvek jako přirozené centrum dění– jídelní část se vstupem na terasu– obývací část s krbem pro chvíle pohodyDalší místnost nabízí maximální flexibilitu:pracovna, pokoj pro hosty, dětský pokoj, fitness nebo hobby zázemí.Samozřejmostí je technická místnost a koupelna se sprchou a WC.Patro – klid a soukromí– hlavní ložnice s vlastní koupelnou, šatnou a výhledem do zahrady– 3 samostatné pokoje pro děti či rodinu– druhá koupelna s vanou a dvojitým umyvadlem– samostatná toaleta Venkovní prostor pro váš životní styl– terasa navazující na obytnou část– zahrada připravená pro relax i rodinné chvíle– přístřešek pro 2 auta– prostor pro saunu nebo další relaxační zázemí– praktická kůlna Moderní technologie, které dávají smyslDům je navržen s důrazem na dlouhodobou hodnotu a nízké provozní náklady:– podlahové vytápění, tepelné čerpadlo– fotovoltaika pro úsporný provoz– rekuperace a příprava na klimatizaci– hliníková okna s trojskly a venkovní žaluzie– příprava na chytrou domácnost i nabíjení elektroauta– kvalitní materiály a nadčasové provedení Místo, kde se dobře žijeMukařov – Srbín nabízí přesně to, co dnes hledá stále více rodin:klid, zeleň a prostor… a přitom skvělou dostupnost do Prahy i kompletní zázemí v nedalekých Říčanech. Proč právě tento dům?Protože nabízí víc než jen metry čtvereční.Nabízí prostor pro život, který si přizpůsobíte vy sami.Dispozice 6+kk vám umožní mít vše:rodinu, práci, soukromí i místo pro odpočinek – bez kompromisů.Dům je ve výstavbě předpokládané dokončení do konce roku 2026.Pro více informací volejte makléři.
Další fotky(za nemovitost) 155 m2 celkem
| Stav nabídky: | ve výstavbě |
| Číslo: | 194-4265 |
| Kategorie: | Samostatné domy - Domy |
Makléř
| Jméno | Daniela Kuzmová |
| Telefon | +420 602 658 673 |
| daniela.kuzmova@seznam.cz |
