Bydlení v blízkosti Prahy!
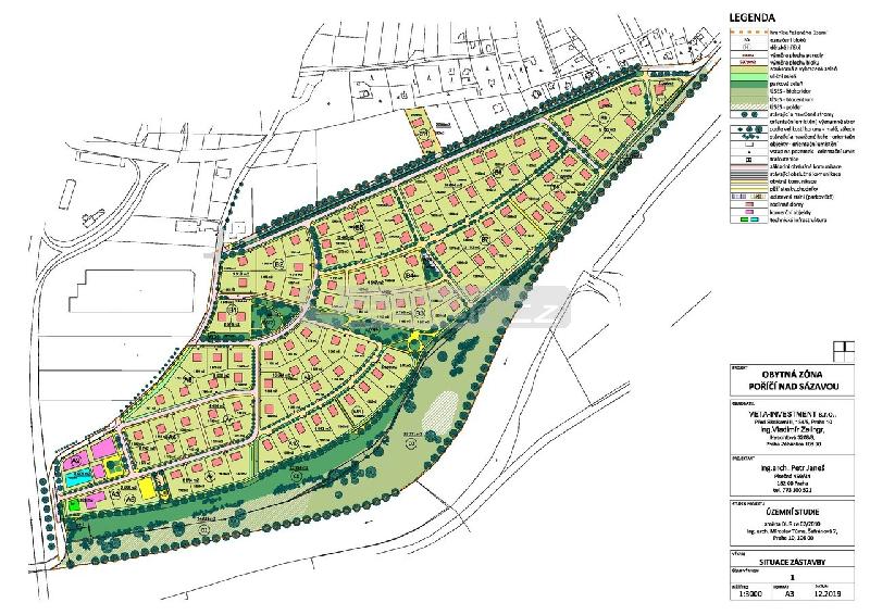
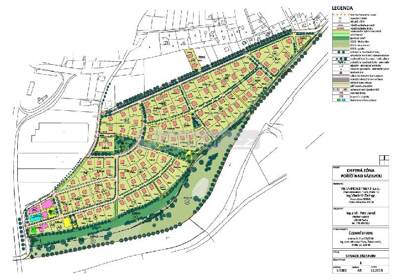
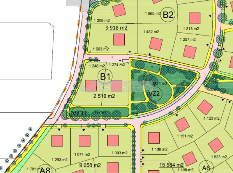
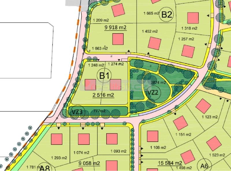
Máme pro vás exkluzivní nabídku stavebního pozemku v atraktivní a klidné lokalitě Poříčí nad Sázavou, která právě prochází proměno Rozbalitu v moderní čtvrť rodinných domů. Pozemková parcela č. 198/6 o rozloze 1.249 m? se nachází v západní části této nové rezidenční oblasti. Kupní cena činí 3.050.000,- Kč za pozemek.V ceně nejsou zahrnuty poplatky za připojení na inženýrské sítě. V plánu je vybudování kompletní infrastruktury – elektřiny, vody, plynu, kanalizace, komunikací a veřejné zeleně.Celé území je dle územního plánu určeno k výstavbě rodinných domů, což z něj činí ideální volbu pro klidné a pohodové bydlení.Zaujala vás tato nabídka? Neváhejte mě kontaktovat – ráda vám poskytnu více informací na níže uvedených kontaktech Po-pá 9.00-17.00 hod.
Další fotky(za nemovitost) 1249 m2 celkem
| Stav nabídky: | |
| Číslo: | 584-968 |
| Kategorie: | Pozemky pro stavění - Pozemky |
Makléř
| Jméno | Martina Dlouhá |
| Telefon | 606 633 941 |
| dlouha@realitari.cz |
